Jiangsu Gongtang Chemical Equipments Co., Ltd. Jiangsu Gongtang
  • 
  • Home
  • About Us +
    • Company Profile
    • Company Tour
    • Certificates
    • Exhibition
  • Products +
  • Service & Support
  • Industries
  • Cases
  • Contact
  • Videos
  • Home
  • Products
  • Glass Lined Column
Glass Lined Column
  • Glass Lined Column
  • Horizontal Glass Lined Storage Tank
  • Glass Lined Column
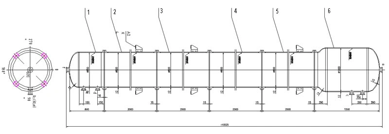
    Custom glass lined column section with external reinforcement

Glass Lined Column

Corrosion resistant columns for handling distillation, extraction and absorption applications

Glass lined columns are suitable for demanding industrial processes where materials can be highly corrosive or reactive. The steel shell gives the column the strength to handle pressure, while the glass lining protects it from corrosion and keeps the process media from touching the metal. This design makes the corrosion resistant column safer, more stable, and longer-lasting for processes such distillation, absorption, and extraction. They are commonly used in distillation, extraction, absorption, and other separation or treatment processes.

Request a Quote

These corrosion resistant columns meet GB25025-2010 or ASME standards, ensuring reliable performance and compliance with industry requirements. The design brings together the chemical inertness of glass with the strength of a steel structure, resulting in equipment that is both durable and resistant to corrosion.

Besides the standard glass lined column models, customized solutions can be provided, including distillation, extraction, and absorption columns, as well as other glass lined process equipment tailored to specific operating conditions.

Features
  • Glass lined columns can handle a wide range of corrosive media, including strong acids, oxidizing agents, and organic solvents. The only limitation is with solutions that contain fluorine ions, which are not suitable.
  • The inner glass surface is smooth and non-porous, making it resistant to staining and much easier to clean compared to bare metal.
  • Because the lining is impermeable, it prevents cross-contamination between batches. At the same time, the chemical stability of glass keeps the purity, color, and properties of the stored or processed materials intact.
Technical Parameters
Design temperature 0℃~+200℃
Design pressure Column interior FV-0.25MPa
Jacket 0.6MPa

Technical Parameters
DN D
(mm)
Max. length L
(mm)
Max. section length L1
(mm)
Assembly method
200 219 3000 - Assembled with split flange
250 273 3000 -
300 325 3000 500
400 406 3000 750 Assembled with clamps
500 508 3000 1000
600 600 4000 1400
800 800 4500 2000
1000 1000 4500 2500
1200 1200 6000 4000
1400 1400 6000 4000
1600 1600 6000 4000
1800 1800 6000 4000
2000 2000 6000 4000

Note: Nozzles and accessories for the columns can be customized based on specific customer requirements.

Glass Lined Columns in Operation at Customer Site
Glass Lined Columns in Operation at Customer Site
Glass Lined Columns in Operation at Customer Site
Glass Lined Columns in Operation at Customer Site

We also provide Accessories for Glass-Lined Equipment

Need Technical Support for Glass-Lined Equipment?

Our engineers provide expert guidance on corrosion-resistant glass-lined reactors, tanks, and customized process equipment for chemical, pharmaceutical, and industrial applications.

  • Other Products
Glass Lined Heat Exchanger
Glass Lined Heat Exchanger
Glass Lined Double Cone Dryer
Glass Lined Double Cone Dryer
Glass Lined Reactor
Glass Lined Reactor
See More

Can glass lined columns be customized? What types are available?

Yes. Customization is available for different column sections, including hose-wound glass lined sections. Depending on project needs, tailored equipment such as rectification towers, extraction towers, absorption towers, and other non-standard glass lined equipment can also be supplied.

What features of glass lined columns ensure performance and material quality?

One of the main advantages is the smooth inner surface, which doesn’t easily stain and is simple to clean. Since the glass lining is impermeable, it prevents cross-contamination, and its stability helps preserve the purity, color, and flavor of the materials during processing.

Jiangsu Gongtang Chemical Equipments Co., Ltd. Jiangsu Gongtang
Glass-Lined Equipment Manufacturer
Quick Links
  • About Us
  • Company Tour
  • Certificates
  • Exhibition
  • Service & Support
  • Project Cases
  • Videos
Products
  • Glass Lined Reactor
  • Glass Lined Storage Tank
  • Glass Lined Column
  • Glass Lined Heat Exchanger
  • Glass Lined Double Cone Dryer
  • Accessories
  • Integrated Process Systems
Contact Us
chrisz.jsjjgt@outlook.com
+86-523-89110022
+86-15861003636